Rimini nuovi appartamenti in palazzine bifamiliari e case schiera

Rimini nuovi appartamenti in palazzine bifamiliari e case schiera

Montescudo, 47854 Croce RN, Italia

Appartamenti in venditaCase a schiera in vendita a RiminiCase e ville in vendita a RiminiCase in venditaImmobili in venditaNuove costruzioni Rimini

Immobile in vendita

130.000,00€

Rif. Annuncio :

 NC 321

Share

Camere

2

Bagni

2

Garage

1

Descrizione

Rimini nuovi appartamenti in palazzine bifamiliari e case schiera.

Le villette sono in bioedilizia residenziale ed ad elevato efficientamento energetico. Il PdC è già in emissione.

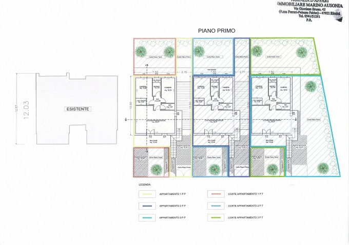
Trattasi di n. 12 unità abitative situate nel Comune di Montescudo– Montecolombo (RN).
Le Villette sono ubicate nella Località Croce. Le unità abitative oggetto di
vendita sono tutte dotate di ingresso indipendente, non sono previste
parti in comune e quindi non necessitano di condominio.
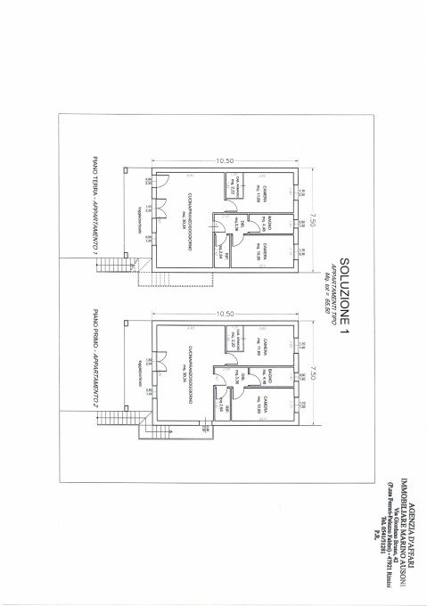
Le unità abitative sono suddivise in un appartamento al piano primo
ed un appartamento al piano secondo, tutte conformi ai requisiti
previsti dalle NTC 2008 e s.m.i

Le villette, come potrete notare dalle planimetrie allegate, sono indipendenti e con diverse tipologie di acquisto.

Si può acquistare:

– il Solo piano terra, con posto auto esterno incluso;

– il Solo piano primo, con posto auto esterno incluso;

– L’intera villetta, con posto auto esterno incluso;

– Il garage a piano terra (come da planimetria indicata nei colori);

– Il piano terra e due camere al primo piano, con parcheggio esterno incluso;

– Il Bilocale (in caso fosse venduta la soluzione precedente) al piano primo con posto auto esterno incluso.

Immobili a Rimini e provincia

La nostra esperienza nel settore immobiliare ci consente di avere sempre più offerte vantaggiose da proporre ai nostri clienti, e soprattutto che riescano a soddisfare tutte le loro esigenze.
Offriamo la nostra consulenza e la nostra assistenza sulle pratiche burocratiche a chi vuole vendere o affittare il proprio immobile.
Ricerchiamo la migliore soluzione per chi è in cerca di una nuova casa, di un ufficio o di un locale commerciale.

Grazie alla nostra esperienza riusciamo a capire ciò che davvero il cliente sta cercando e ci impegniamo seriamente a trovare quello che corrisponde alle sue esigenze.
D’altronde se il cliente è soddisfatto, lo siamo anche noi!

Immobili residenziali e commerciali

L’agenzia immobiliare Marino Ausonia si occupa di contratti di locazione residenziali e commerciali e contratti di compravendita.
Quindi se stai cercando appartamenti in affitto, appartamenti in vendita, case e ville, appartamenti di nuova costruzione, attici o case affiancate a schiera, sei proprio nel posto giusto.
Ovviamente, vale la stessa cosa se invece stai cercando degli uffici, dei terreni edificabili, dei terrei agricoli. Oppure dei locali commerciali, dei capannoni o dei magazzini.

Vuoi invece rilevare un’attività commerciale? Ci peniamo noi! Abbiamo per te tante soluzioni: ristoranti, alberghi e residence, agriturismi e aziende agricole e ovviamente tanti stabilimenti balneari.

Agenzia immobiliare Rimini centro

L’agenzia immobiliare Rimini Marino Ausonia si trova in via Giordano Bruno, in una posizione davvero ottimale per chi è solito frequentare le vie del centro storico di Rimini.
La sua presenza nel cuore di Rimini da oltre 70 anni è sinonimo di affidabilità, di certezza ma soprattutto di esperienza d’affari e di conoscenza dell’area geografica che comprende non solo il centro storico, ma anche zone limitrofe e località della provincia.

I nostri clienti hanno sempre dei grandi sogni: sono alla ricerca di un posto accogliente dove vivere, ma che sia anche comodo e funzionale, cercano uno spazio strategico dove far nascere una nuova attività, o un rifugio per motivi lavorativi. Sognano di fare un passo importante nella propria vita.
Noi dell’agenzia immobiliare Marino Ausonia con la nostra passione, con la nostra grande professionalità, ma soprattutto con tutto il nostro impegno, vogliamo regalare ad ognuno di essi il proprio sogno.

Immobili Rimini

L’agenzia immobiliare Rimini Marino Ausonia oltre ad occuparsi della vendita o dell’affitto di appartamenti, locali commerciali, attività commerciali, terreni, lotti edificabili e tanto altro, ti offre assistenza e consulenze tecniche grazie alla collaborazione con geometri, ingegneri, avvocati, architetti, idraulici e professionisti del settore.

Inoltre, ti suggerisce tutte le polizze obbligatorie e facoltative per la tua abitazione o per la tua attività commerciale.
Ti segue fino alla firma dell’atto notarile di compravendita o fino alla consegna delle chiavi in caso di affitto residenziale o commerciale.

Affidati a noi in completa sicurezza e tutto diventerà facile, ma soprattutto “reale”.

Trasparenza immobiliare

In ambito immobiliare la trasparenza è un fattore fondamentale, e per noi non è certamente un optional.
Essere trasparenti è davvero essenziale in questo settore, perché le persone si affidano a noi per movimentare i propri beni e propri soldi. Che si tratti di acquisto o di affitto.
Il rapporto d’affari e il rapporto umano per noi devono viaggiare di pari passo.

Chi si avvale del nostro servizio ha il diritto di conoscere tutti i dettagli dell’immobile, delle tipologie di contratto, delle polizze esistenti, della trattativa, così come noi abbiamo il diritto a ricevere il compenso una volta concluso l’affare.
E gli accordi devono essere trasparenti, senza clausole vessatorie, o formule strane.
Senza informazioni trasparenti, non c’è speranza, di arrivare all’obiettivo finale.

Noi di Marino Ausonia immobiliare ti assicuriamo:
di dare chiarezza ai rispettivi delle parti;
di dare il giusto valore sia all’immobile che al denaro;
di comprendere il percorso di vita che il cliente sta compiendo.

https://www.marinoausoniaaffariimmobiliari.com/

https://www.facebook.com/profile.php?id=61578733988197

https://www.tiktok.com/@immobiliaremarinoausonia

https://www.linkedin.com/in/colombo-monticelli-b207a086/

https://my.trovacasa.it/my_annunci.aspx?tab=italia

https://www.instagram.com/immobiliare_marino_ausonia/

https://www.youtube.com/@ImmobiliareMarinoAusonia

Loading

Altre informazioni

  • Parcheggio: Box chiuso/garage
  • Riscaldamento: Autonomo
  • Condizioni: Nuovo
  • Unita Immobile: 1
  • Spese Condominiali Mensili: No
  • Piani Totali: 2
  • Piano: Primo e secondo
  • Immobile Turistico: No
  • Ascensore: No
  • Arredato: No
  • Terrazzo: Si
  • Giardino: Si

Localizzazione

    Richiedi informazioni

    Immobili simili