Appartamenti nuovi a Bellaria Igea Marina in Classe A4

Appartamenti nuovi a Bellaria Igea Marina in Classe A4

Bellaria Igea Marina, Via Belvedere, 47814 Bellaria-Igea Marina RN, Italia

Appartamenti in vendita

Immobile in vendita

234.000,00€

Rif. Annuncio :

 NC 320

Share

Camere

1

Bagni

1

Garage

1

Descrizione

Appartamenti nuovi a Bellaria Igea Marina in Classe A4

Nuovi Appartamenti a Bellaria Igea Marina: Un’Opportunità in Classe A4

Immobiliare Marino Ausonia di Rimini ha il piacere di annunciare la prossima realizzazione di nuovi appartamenti in classe energetica A4 a Bellaria Igea Marina, nella zona dello Stadio. Questa è un’ottima occasione per chi cerca un’abitazione moderna, efficiente e con tutti i comfort.

Dettagli della Palazzina e delle Tipologie Abitative

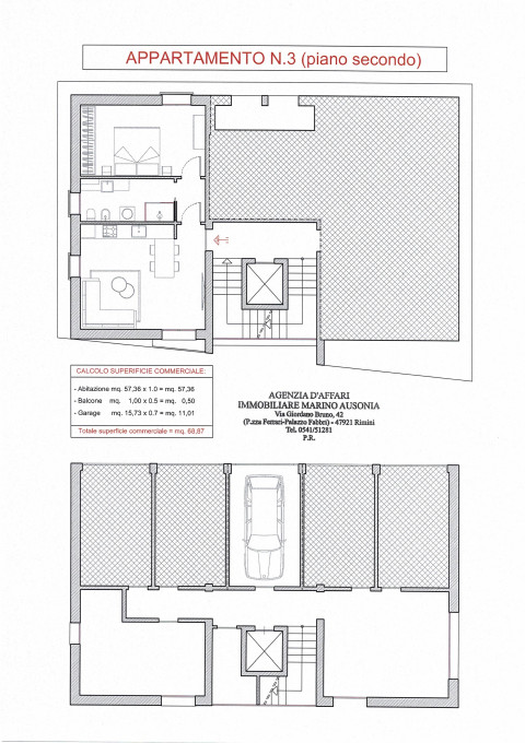
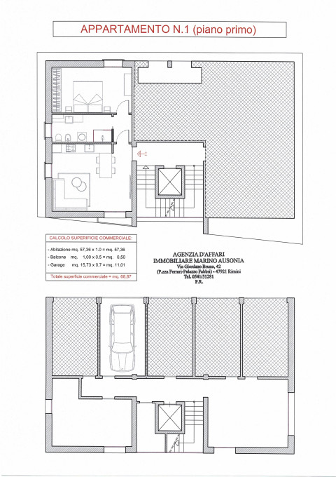
Si tratta di una piccola palazzina che offrirà diverse soluzioni abitative, pensate per soddisfare varie esigenze:

  • 2 appartamenti bilocali: ideali per single, coppie o come investimento.
  • 2 appartamenti trilocali: perfetti per famiglie o per chi desidera spazi più ampi.
  • Attico al terzo ed ultimo piano: per chi cerca il massimo della privacy, luminosità e probabilmente una vista privilegiata.
  • EDIFICIO ANTISISMICO secondo le “NTC 2018”

Comfort e Vantaggi Inclusi

Un grande vantaggio di queste nuove costruzioni è l’inclusione del garage nel prezzo per tutti gli appartamenti, un dettaglio non trascurabile in una località come Bellaria Igea Marina.

Inoltre, per gli amanti del verde o per chi desidera uno spazio esterno aggiuntivo, c’è la possibilità di acquistare una porzione di giardino separatamente.

Perché scegliere un immobile in Classe A4?

Acquistare un appartamento in classe A4 significa scegliere un’abitazione all’avanguardia dal punto di vista energetico. Questo si traduce in:

  • Minori costi in bolletta: grazie all’elevata efficienza energetica, i consumi per riscaldamento, raffrescamento e produzione di acqua calda saranno notevolmente ridotti.
  • Maggiore comfort abitativo: un’isolamento termico e acustico superiore garantisce ambienti più confortevoli in ogni stagione.
  • Valore dell’immobile nel tempo: le proprietà in classi energetiche elevate mantengono e accrescono il loro valore più facilmente sul mercato.
  • Minore impatto ambientale: contribuirete a ridurre le emissioni di CO2.

Per maggiori informazioni o per prenotare una visita, potete contattare direttamente Immobiliare Marino Ausonia Rimini.

Immobili a Rimini e provincia Appartamenti nuovi a Bellaria Igea Marina in Classe A4

La nostra esperienza nel settore immobiliare ci consente di avere sempre più offerte vantaggiose da proporre ai nostri clienti, e soprattutto che riescano a soddisfare tutte le loro esigenze.
Offriamo la nostra consulenza e la nostra assistenza sulle pratiche burocratiche a chi vuole vendere o affittare il proprio immobile.
Ricerchiamo la migliore soluzione per chi è in cerca di una nuova casa, di un ufficio o di un locale commerciale.

Grazie alla nostra esperienza riusciamo a capire ciò che davvero il cliente sta cercando e ci impegniamo seriamente a trovare quello che corrisponde alle sue esigenze.
D’altronde se il cliente è soddisfatto, lo siamo anche noi!

Immobili residenziali e commerciali

L’agenzia immobiliare Marino Ausonia si occupa di contratti di locazione residenziali e commerciali e contratti di compravendita.
Quindi se stai cercando appartamenti in affitto, appartamenti in vendita, case e ville, appartamenti di nuova costruzione, attici o case affiancate a schiera, sei proprio nel posto giusto.
Ovviamente, vale la stessa cosa se invece stai cercando degli uffici, dei terreni edificabili, dei terrei agricoli. Oppure dei locali commerciali, dei capannoni o dei magazzini.

Vuoi invece rilevare un’attività commerciale? Ci peniamo noi! Abbiamo per te tante soluzioni: ristoranti, alberghi e residence, agriturismi e aziende agricole e ovviamente tanti stabilimenti balneari.

Agenzia immobiliare Rimini centro

L’agenzia immobiliare Rimini Marino Ausonia si trova in via Giordano Bruno, in una posizione davvero ottimale per chi è solito frequentare le vie del centro storico di Rimini.
La sua presenza nel cuore di Rimini da oltre 70 anni è sinonimo di affidabilità, di certezza ma soprattutto di esperienza d’affari e di conoscenza dell’area geografica che comprende non solo il centro storico, ma anche zone limitrofe e località della provincia.

I nostri clienti hanno sempre dei grandi sogni: sono alla ricerca di un posto accogliente dove vivere, ma che sia anche comodo e funzionale, cercano uno spazio strategico dove far nascere una nuova attività, o un rifugio per motivi lavorativi. Sognano di fare un passo importante nella propria vita.
Noi dell’agenzia immobiliare Marino Ausonia con la nostra passione, con la nostra grande professionalità, ma soprattutto con tutto il nostro impegno, vogliamo regalare ad ognuno di essi il proprio sogno.

Immobili Rimini

L’agenzia immobiliare Rimini Marino Ausonia oltre ad occuparsi della vendita o dell’affitto di appartamenti, locali commerciali, attività commerciali, terreni, lotti edificabili e tanto altro, ti offre assistenza e consulenze tecniche grazie alla collaborazione con geometri, ingegneri, avvocati, architetti, idraulici e professionisti del settore.

Inoltre, ti suggerisce tutte le polizze obbligatorie e facoltative per la tua abitazione o per la tua attività commerciale.
Ti segue fino alla firma dell’atto notarile di compravendita o fino alla consegna delle chiavi in caso di affitto residenziale o commerciale.

Affidati a noi in completa sicurezza e tutto diventerà facile, ma soprattutto “reale”.

Trasparenza immobiliare

In ambito immobiliare la trasparenza è un fattore fondamentale, e per noi non è certamente un optional.
Essere trasparenti è davvero essenziale in questo settore, perché le persone si affidano a noi per movimentare i propri beni e propri soldi. Che si tratti di acquisto o di affitto.
Il rapporto d’affari e il rapporto umano per noi devono viaggiare di pari passo.

Chi si avvale del nostro servizio ha il diritto di conoscere tutti i dettagli dell’immobile, delle tipologie di contratto, delle polizze esistenti, della trattativa, così come noi abbiamo il diritto a ricevere il compenso una volta concluso l’affare.
E gli accordi devono essere trasparenti, senza clausole vessatorie, o formule strane.
Senza informazioni trasparenti, non c’è speranza, di arrivare all’obiettivo finale.

Noi di Marino Ausonia immobiliare ti assicuriamo:
di dare chiarezza ai rispettivi delle parti;
di dare il giusto valore sia all’immobile che al denaro;
di comprendere il percorso di vita che il cliente sta compiendo.

https://www.marinoausoniaaffariimmobiliari.com/

https://www.facebook.com/profile.php?id=61573821267998

https://www.tiktok.com/@immobiliaremarinoausonia

https://www.linkedin.com/in/colombo-monticelli-b207a086/

https://www.youtube.com/@ImmobiliareMarinoAusonia

Loading

Altre informazioni

  • Parcheggio: Box chiuso/garage
  • Riscaldamento: Centralizzato
  • Condizioni: Nuovo
  • Unita Immobile: 5
  • Piani Totali: 3
  • Immobile Turistico: Si
  • Ascensore: No
  • Arredato: No
  • Terrazzo: Si
  • Giardino: Si

Localizzazione

    Richiedi informazioni

    Immobili simili